Про Архітектуру
Працюючи над обʼємно-пластичним вирішенням та архітектурою фасадів ми намагалися максимально корректно взаємодіяти з чудовою архітектурою існуючого комплексу лікарні: не втручатися, наскільки це можливо, в архітектуру існуючих будівель, не трансформувати і не видозмінювати її сформованого образу.
Ключові рішення
Фасади
Південно-західний фасад

Ми спробували максимально зберегти автентичний вигляд більшості фасадів існуючих будівель. Так, південно-східний та південно-західний фасад фактично залишаються недоторканими.
На південно-західному фасаді між існуючими корпусом лікарні і будівлею котельні над існуючою стіною, що відділяла господарський двір, влаштовано новий фасад, виконаний у безрамному склінні. Це - єдине місце, де нова архітектура “ховається”. Таке рішення продиктовано тим, що нам дуже сподобалася композиція цього фрагменту фасаду до втручань і хотілося її максимально зберегти для майбутнього.
Північно-східний фасад

Зведення нових обʼємів зосереджено вздовж північно-східного фасаду комплексу. На території, яка була, на нашу думку, найменш ефективно загосподарьованою та має менш цінні ландшафт та озеленення, із демонтажем дисгармонійної будівлі господарського призначення.
Пропоновані розташування та конфігурація нових “корпусів” центру формують більш гуманний, співмірний до контексту масштаб забудови.
Зокрема, нові 3-поверхове крило (з палатами та їдальнею) та об’єм рецепції частково закривають найбільш масивний, монолітний фрагмент північно-східного фасаду існуючого корпусу.
Взаємодія нового з існуючим

Матеріал фасаду
Дах історичної вілли в східному куті ділянки вміщує в себе мансардний поверх та має змінний кут нахилу. Натомість, "дах" існуючого корпусу лікарні є, радше, імітацією, а його геометрія є простішою.
Ми підхоплюємо цю логіку і одразу вирішуємо фасад триповерхового крила у "даховому" матеріалі: кедровому чи модриновому ґонті.
Відтак, різночасові обʼєми обʼєднуються матеріалом та різняться способом його використання.
Діаграма перетворень

Обʼємно-просторове вирішення

Пропонуємо влаштувати 3-й поверх на відмітці 7.05 м. Відтак, над плитою перекриття між 2-м та 3-м поверхами буде 55 см висоти, чого достатньо для того, щоб звести всі інженерні мережі під припіднятою підлогою приміщень та пиріжок експлуатованої крівлі.
Даховий ліхтар забезпечує природнє освітлення розташованих в глибині корпусу приміщень першого поверху.

Конструктив "спортивного крила" пропонуємо виконати із ламінованої деревини.
Пониження покрівлі над приміщеннями, що не потребують великої висоти, дозволяє сховати інженерне обладнання.
Приміщення вздовж південно-східного фасаду крила освітлюються верхнім світлом через фасадну систему, розташовану над збереженою стіною міжкорпусом лікарні та котельнею.

Ліфт, розташований в новому триповерховому крилі, опускається в цокольний поверх, забезпечуючи зручний звʼязок усіх поверхів зі складськими приміщеннями (наприклад, для влаштування додаткового ліжка у котрійсь із палат).
Інший ліфт розташовано у східному крилі існуючого корпусу, що забезпечує зручний звʼязок із приймальним відділ енням та східною стороною подвірʼя закладу.
Фундаменти нових обʼємів віддалено від існуючого корпусу на стільки, на скільки це бачилося можливим. Це дозволить спростити та здешевити їх виконання.
На експлуатованих покрівлях-терасах третього поверху над існуючим корпусом розташовано короби з висотою грунту, достатньою для повноцінного росту кущів та навіть невеликих дерев.
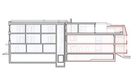
Усі перетини:

Аксонометрії та додаткові пояснення
Пласкі неексплуатовані покрівлі над новими обʼємами озеленено седумними килимами.
Коригування рельєфу по периметру забудови, необхідне для забезпечення безбар’єрного зв’язку приміщень будівлі з територією додатково гуманізує її масштаб.

Нові та існуючі об’єми ритмічно чергуються.
Архітектура нових об’ємів та прилеглі ландшафт з благоустроєм взаємодіють між собою: фасад та дах “спортивного крила” підпорядковується контуру ділянки закладу; алею, що веде до нового головного входу, влаштовано по осі тамбуру, поворот якого зумовлено оптимальним розплануванням холу.












